Silló Dániel
Oldalak
Expo 2015
HELL
Diplomaterv
Diploma-vázlatterv
Komplex
Várostervezés
Épületszerkezettan 8.
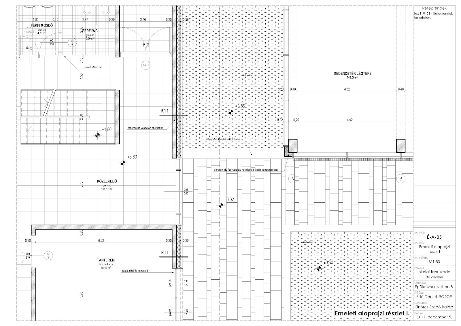
Iskolai tanuszoda - Kiviteli terv (részlet) 2011
Épületszerkezettan 8.
Újabb bejegyzés
Régebbi bejegyzés
Főoldal